Ricerca rapida
-
-
CERCA

Crevoladossola
LUMINOSO APPARTAMENTO PIANO ALTO, CON GARAGE

Appartamento

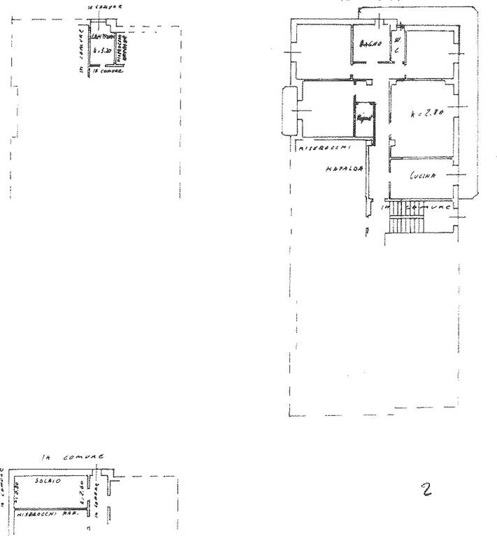
In zona comodissima proponiamo grande appartamento al 5° ed ultimo piano di condominio ben tenuto e oggetto di recenti migliorie. L'abitazione si compone di ingresso, cucina abitabile, ampia sala, disimpegno zona notte con ripostiglio, 3 camere, 2 bagni; balcone unico che corre sui lati est e nord e altro balcone sul lato ovest; porzione di solaio, cantina e garage. Il condominio è in ordine, con facciate e cancelli appena rifatti, ampi spazi comuni dove riporre le biciclette e posti auto condominiali nel cortile, riscaldamento centralizzato. L'appartamento risulta molto luminoso e con locali grandi ben finestrati, adatto anche a famiglie numerose o a chi ha bisogno di spazio. Per informazioni o visite 0324/262313 o whatsapp 353/4442749

Caratteristiche

Codice
V000554
Prezzo
215.000,00 EUR
Spese condominiali
2.000,00 EUR
Mq
145
Classe
VA
Locali
6
Camere
3
Bagni
2
Box
1
Mq Box
16
Mq Giardino
50
Mq Balcone
25
Stato Immobile
Buono
Grado
Signorile
Orientamento
Est Nord Ovest
Lati Liberi
3
Giardino
Privato
Arredi
Possibilità
Tipo Soggiorno
Doppio
Tipo Cucina
Abitabile
Riscaldamento
Conta Calorie
Tipo Riscaldam.
Caldaia a Condensazione
Tipo Impianto
Radiatori
Fonte Energetica
Metano
Acqua Calda
Centralizzata
Infissi
PVC Triplo Vetro
Serramenti
Ottimo
Persiana
Tapparella PVC
Pavim. Giorno
Marmo
Pavim. Notte
Marmo
Pavim. Cucina
Ceramica
Pavim. Bagno
Ceramica
Cantina - Solaio
Entrambe
Accesso interno disabili
Pieno accesso
Accessori
Ascensore, Doppi Vetri, Ripostiglio, Video Citofono

MAPPA

Via Casetti 14, Crevoladossola (VB)
Cookie preference